Planning to redecorate your living room or rearrange furniture in your bedroom? Using graph paper to map out a room layout can be a game-changer. It’s a simple yet effective way to visualize your ideas and make the most of your space.
Whether you’re a design enthusiast or just looking to spruce up your home, creating a floor plan on graph paper can help you avoid costly mistakes and ensure that everything fits just right. Plus, it’s a fun and creative way to unleash your inner interior designer.
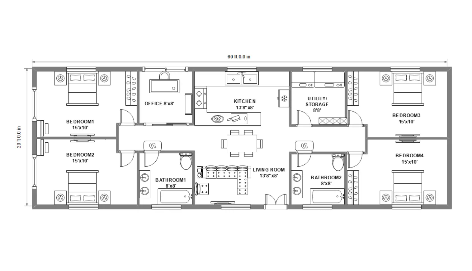
Graph Paper To Map Out A Room Layout
Graph Paper To Map Out A Room Layout
Start by measuring your room and furniture dimensions. Then, grab a sheet of graph paper and assign each square a specific measurement. Use a scale that makes sense for your space – for example, 1 square = 1 foot. This will help you accurately represent the size of your room and furniture.
Next, sketch out your room layout on the graph paper. You can use different symbols for furniture pieces, doors, windows, and other elements. Play around with different arrangements until you find the perfect setup that maximizes space and flow.
Once you’re happy with your floor plan, you can easily make adjustments without having to move heavy furniture around. You can also use your graph paper layout as a guide when shopping for new pieces or planning a renovation project. It’s a handy tool that can save you time and energy in the long run.
So, next time you’re thinking about redesigning a room, grab some graph paper and let your creativity run wild. Mapping out a room layout doesn’t have to be daunting – it can be a fun and practical way to bring your design dreams to life. Happy decorating!
How To Draw A Floor Plan Like A Pro The Ultimate Guide The Interior Editor
Planning And Costing Floor Covering Plans Scale Drawings


