Are you looking to redesign your kitchen layout but aren’t sure where to start? One helpful tool you can use is graph paper. By sketching out your kitchen corner layout on graph paper, you can visualize different design options and make informed decisions.
Graph paper provides a grid that allows you to accurately measure and scale your kitchen space. You can use this grid to plot out the dimensions of your kitchen, including walls, windows, doors, and appliances. This will help you see how everything fits together and identify any potential issues.
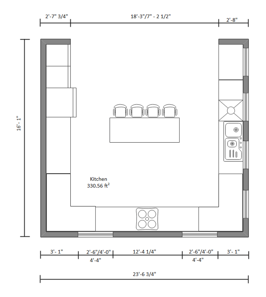
Kitchen Corner Layout On Graph Paper
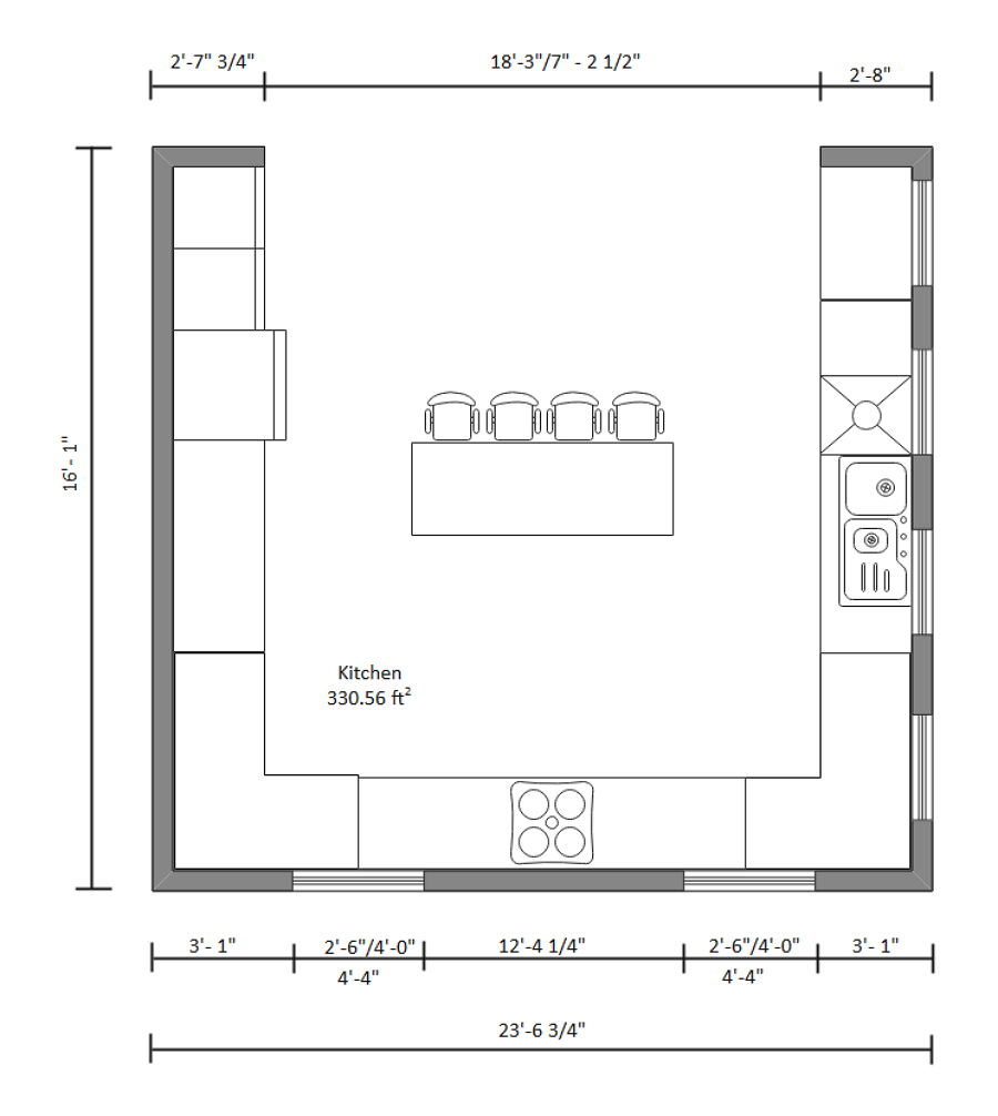
Kitchen Corner Layout On Graph Paper
When sketching your kitchen corner layout on graph paper, start by measuring your kitchen dimensions and transferring them to the grid. Next, outline the location of your cabinets, countertops, sink, stove, and refrigerator. You can then experiment with different layouts to see what works best for your space.
Consider factors like workflow, storage, and accessibility when designing your kitchen layout. For example, you may want to place your sink near the dishwasher for easy cleanup or create a designated prep area next to the stove. By using graph paper, you can easily rearrange elements until you find the perfect configuration.
Don’t forget to leave enough space for traffic flow in your kitchen. Aim for at least 36 inches of clearance between countertops and 42 inches between countertops and islands or peninsulas. This will ensure that your kitchen is both functional and safe for everyday use.
In conclusion, sketching your kitchen corner layout on graph paper is a practical and cost-effective way to plan your kitchen redesign. By visualizing different design options and experimenting with layouts, you can create a space that is both beautiful and functional. So grab some graph paper and get started on your kitchen transformation today!
Downloads DIY Kitchens Advice
Avoiding Common DIY Mistakes In IKEA Kitchen Design


